Home
首页
About us
关于我们
Services
专业服务
Projects
经典项目
Business area
特色研究
Careers
人力资源
经典项目 /
Projects
居住
商业办公
科教
酒店
轨道交通
景观
室内
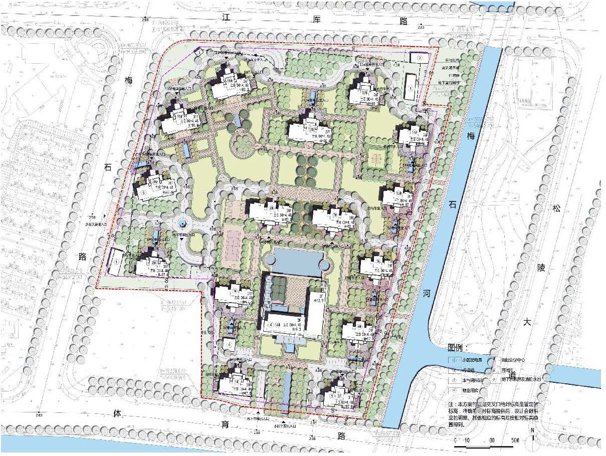
吴江梅石路东侧体育路北侧地块
项目地点
江苏 , 苏州
设计时间
2016 年 3 月
占地面积
62986.75 ㎡
建筑面积
196550.2 ㎡
容积率
2.3
绿化率
30%